Aktuelle Angebote

SCHULZ BAUPROJEKTE - Seite an Seite
SCHULZ BAUPROJEKTE - Seite an Seite

Concept 163 W

Ein biss­chen mehr Sonne ge­fäl­lig?

Das Con­cept 163 W zeigt sich als ele­gan­te Stadt­vil­la.

Hier fin­den Sie ein be­hag­li­ches, ele­gan­tes und

son­nen­durch­flu­te­te Zu­hau­se für die ganze Fa­mi­lie.

SCHULZ BAUPROJEKTE - Seite an Seite

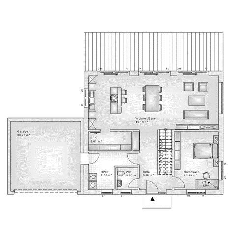
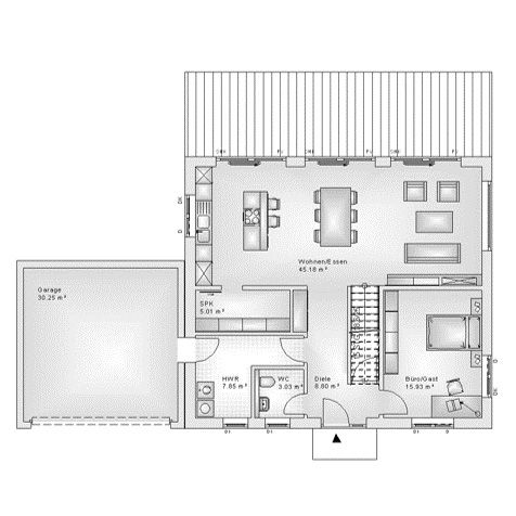
Das Erd­ge­schoß ver­fügt über einen of­fe­nen und groß­zü­gi­gen Wohn-, Ess- und Koch­be­reich, einen Vor­rats- und Haus­wirt­schafts­raum, Gäste-WC sowie den di­rek­ten Zu­gang von der Ga­ra­ge in die Wohn­räu­me. Das zu­sätz­li­che Zim­mer kann Ihnen als Büro oder als Gästezimmer die­nen.

 

Im Ober­ge­schoß be­fin­det sich ein El­tern­schlaf­zim­mer mit be­geh­ba­rer An­klei­de und di­rek­tem Zu­gang zur son­ni­gen Dach­ter­ras­se sowie zwei Kin­der­zim­mer und ein mo­der­nes, hel­les und kom­for­ta­bles Bad.

Concept 163 W

Wohn­flä­che

 
Erd­ge­schoss86 m²
Ober­ge­schoss77 m²
Dach­formWalmdach

Rufen Sie uns an:

Senden Sie uns eine Nachricht: